200 000 €
6 673 € / m²

Appartement T1 - 30m2 à Colombes

Appartement T1 - 30m2 à Colombes

92700 Colombes
1 pièce 29.97 m2
Référence : 92COLOVINPLURC502
200 000 €
6 673 € / m²

Conditions de vente

200 000 €

Taxe foncière
Non renseignée

Informations

Étage : 5
1 salle d'eau
1 baignoire
Bâtiment de : 7 étages
Ascenseur
Balcon
Mono-propriété

Description

Idéalement placé à proximité du Tram T1, proche des commerces et écoles.

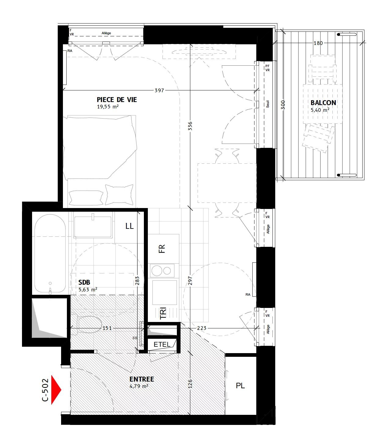
Cet appartement se compose :

- d'une belle entrée de plus de 4m2,
- d'un séjour/cuisine de plus de 19m2,
- d'une belle salle de bain,
- et d'un espace extérieur de plus de 5m2


Le prix affiché est sur une base de TVA à 5,5% (voir si éligibilité).

Pour plus d'information, merci de nous contacter directement.
Mis à jour le 27/03/2026

Relevés techniques

DPE : 107
A
B
C
D
E
F
G
GES : 7
A
B
C
D
E
F
G
Diagnostic réalisé le: 26/02/2026

Production eau chaude
Individuel Gaz

Production chauffage
Individuel Gaz


Les informations sur les risques auxquels ce bien est exposé sont disponibles sur le site Géorisques : www.georisques.gouv.fr

État et prestations

État général
Excellent

Cuisine
Prestations
État
Salles de bain
Prestations
État
Sol(s)
Prestations
État
Fenêtres
Prestations
État

Détails des surfaces

Espace
Carrez
Au sol
Entrée
4.79 m²
0 m²

Salle de bain
5.63 m²
0 m²

Séjour / cuisine
19.55 m²
0 m²

Balcon
0 m²
5.4 m²

Total
29.97 m²
5.40 m²