141 502 €
6 204 € / m²

T1 de plus de 22m2 au coeur de Nanterre

T1 de plus de 22m2 au coeur de Nanterre

92000 Nanterre
1 pièce 22.81 m2
Référence : 92COLOICAD1029
141 502 €
6 204 € / m²

Conditions de vente

141 502 €

Taxe foncière
Non renseignée

Informations

Étage : 2
1 salle d'eau
1 douche
1 WC
Bâtiment de : 6 étages
Ascenseur
Mono-propriété

Description

Dans un lieu de vie au coeur de Nanterre, proche des commerces, des écoles et des transports.

Ce bien se compose :

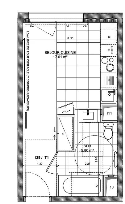
- une pièce de vie : séjour/cuisine de 17m2,
- d'une salle de bain de 5,80m2

Le prix affiché est sur une base de TVA à 5,5% (voir si éligibilité).

Pour plus d'information, merci de nous contacter directement.
Mis à jour le 27/03/2026

Relevés techniques

Traversant
Non
Vitrage
Double

DPE : 107
A
B
C
D
E
F
G
GES : 7
A
B
C
D
E
F
G
Diagnostic réalisé le: 26/02/2026

Production eau chaude
Individuel Gaz

Production chauffage
Individuel Gaz


Les informations sur les risques auxquels ce bien est exposé sont disponibles sur le site Géorisques : www.georisques.gouv.fr

État et prestations

État général
Excellent

Cuisine
Prestations
État
Salles de bain
Prestations
État
Sol(s)
Prestations
État
Fenêtres
Prestations
État

Détails des surfaces

Espace
Carrez
Au sol
Séjour / cuisine
17.01 m²
0 m²

Salle de bain
5.8 m²
0 m²

Total
22.81 m²
0.00 m²