290 160 €
6 909 € / m²

Studio de plus de42m2 à Vanves

Studio de plus de42m2 à Vanves

92170 Vanves
1 pièce 42 m2
Référence : 92VANCREGRAA03
290 160 €
6 909 € / m²

Conditions de vente

290 160 €

Taxe foncière
Non renseignée

Informations

Étage : 1
1 salle d'eau
1 douche
1 WC
Bâtiment de : 4 étages
Local à vélo
Mono-propriété

Dernier ravalement
2026
Dernière réfection toiture
2026

Description

Idéalement placé au coeur historique de la ville de Vanves. Proche des métros 12, 13 et prochainement la ligne 15 et également a proximité des commerces et des écoles.

Ce bien est a réhabiliter, il se compose :

- d'un séjour,
- d'une cuisine,
- d'une chambre
- d'une salle de bain

Pour plus d'information, merci de nous contacter directement.
Mis à jour le 22/04/2026

Relevés techniques

DPE : 107
A
B
C
D
E
F
G
GES : 7
A
B
C
D
E
F
G
Diagnostic réalisé le: 12/11/2025

Production eau chaude
Individuel Gaz

Production chauffage
Individuel Gaz


Les informations sur les risques auxquels ce bien est exposé sont disponibles sur le site Géorisques : www.georisques.gouv.fr

État et prestations

État général
Excellent

Cuisine
Prestations
État
Salles de bain
Prestations
État
Sol(s)
Prestations
État
Fenêtres
Prestations
État

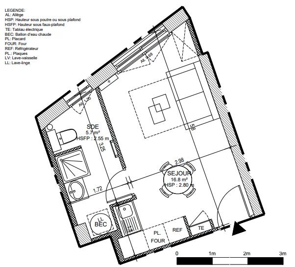
Détails des surfaces

Espace
Carrez
Au sol
Séjour
20.3 m²
0 m²

Cuisine
6.4 m²
0 m²

Chambre 1
9.3 m²
0 m²

Salle de douche
3.5 m²
0 m²

WC
2.5 m²
0 m²

Total
42.00 m²
0.00 m²