325 000 €
9 722 € / m²

Studio de plus de 33m2 à Issy - Les - Moulineaux

Studio de plus de 33m2 à Issy - Les - Moulineaux

92130 Issy-les-Moulineaux
1 pièce 33.43 m2
Référence : 92ISSCATEAXOA11
325 000 €
9 722 € / m²

Conditions de vente

325 000 €

Taxe foncière
Non renseignée

Informations

Étage : 1
1 salle d'eau
1 douche
1 WC
Bâtiment de : 5 étages
Ascenseur
Local à vélo
Mono-propriété

Description

Idéalement placé à seulement 10 minutes du centre, proche des écoles et commerces à et 5 minutes des transports.

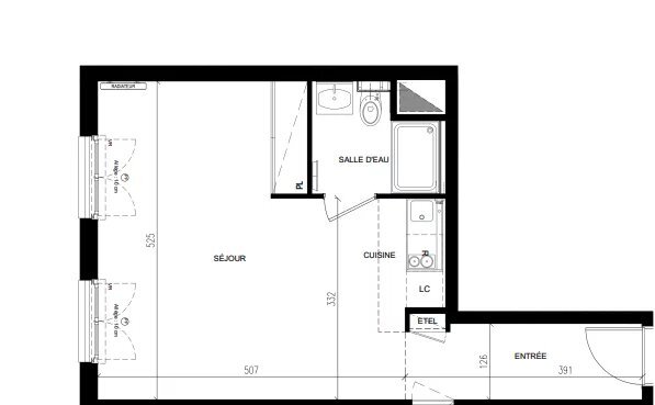
Ce bien se compose :

- d'une entrée,
- d'un séjour/cuisine
- d'une salle de douche

Pour plus d'information, merci de nous contacter directement.
Mis à jour le 27/03/2026

Relevés techniques

Traversant
Non
Vitrage
Double

DPE : 107
A
B
C
D
E
F
G
GES : 7
A
B
C
D
E
F
G
Diagnostic réalisé le: 13/03/2026

Production eau chaude
Individuel Gaz

Production chauffage
Individuel Gaz


Les informations sur les risques auxquels ce bien est exposé sont disponibles sur le site Géorisques : www.georisques.gouv.fr

État et prestations

État général
Excellent

Cuisine
Prestations
État
Salles de bain
Prestations
État
Sol(s)
Prestations
État
Fenêtres
Prestations
État

Détails des surfaces

Espace
Carrez
Au sol
Entrée
3.91 m²
0 m²

Séjour
23.83 m²
0 m²

Cuisine
2.17 m²
0 m²

Salle de douche
3.52 m²
0 m²

Total
33.43 m²
0.00 m²