A LOUER T3 récent avec 2 parkings 1 050,89 € cc

Rue Saint-Blaise 78410 Nézel

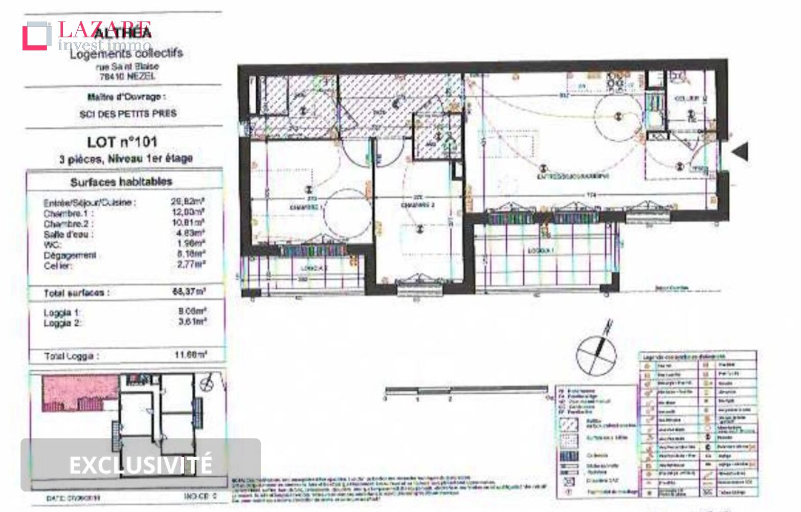
3 pièces 68.37m2

Référence : 9448

Conditions de location
1 050,89 € / mois cc

Charges
55,00 €

Dépôt de garantie
995,89 €

Honoraires agence
752,07 € TTC *


Disponibilité
Disponible le 03/11

Durée du bail
3 ans

Colocation
Acceptée


* Dont 205,11 € TTC pour la réalisation de l'état des lieux
Description

Au sein de la résidence ALTHEA, résidence intimiste, récente et sécurisée avec ascenseur et prestations de qualité, retrouvez ce bel appartement T3 de 68,37 m2 au 1er étage avec deux loggias de 8,05 m2 et 3,61 m2 exposées Sud.

Située à Nézel (à proximité d’Aubergenville, à 45 km à l’ouest de Paris), cette résidence vous apportera confort et bien-être ainsi qu'un cadre de vie calme et agréable à proximité des services, commerces, établissements scolaires et transports.

T3 composé d'une entrée avec cellier ( branchements LL), d'un séjour avec cuisine ouverte aménagée et équipée ( évier un bac avec égouttoir, meubles hauts et bas, hotte aspirante, plan de travail et crédence, four électrique, emplacement pour réfrigérateur, plaque vitrocéramiques 4 feux, branchements LV), d'un dégagement, de deux chambres, d'une salle d'eau ( meuble vasque et vasque avec miroir et bandeau lumineux, receveur de douche compris douchette et flexible sur barre avec pare douche, radiateur sèche-serviettes ), d'un WC indépendant.

Deux parkings en extérieur (lots n° 9 et 10) sont intégrés à cette location.

T3 disponible à la location : à partir du 03/11/2025 . Location sous dispositif PINEL (zone A ) – plafond de ressources à ne pas dépasser pour le locataire. Le locataire doit avoir son propre foyer fiscal et occuper le bien en qualité de résidence principale.

Loyer hors charges/mois : 995,49 €
Charges locatives/mois : 55,00 € (entretien et maintenance des parties communes et biens d’équipements communs, espaces verts communs, et provision d’eau froide)
Dépôt de garantie : 995,49 €
Honoraires d'agence : 752,07 € TTC (dont 205,11 € TTC d'état des lieux)

ATTENTION : SEULES LES CANDIDATURES EFFECTUÉES SUR NOTRE PLATEFORME LOCATION SERONT ÉTUDIÉES

Mis à jour le 06/10/2025

Caractéristiques
  • 2 chambres
  • Étage : 1
  • 1 salle d'eau
  • 1 douche
  • 1 WC
  • Bâtiment de : 2 étages
  • 2 parkings
  • Ascenseur
  • Balcon
  • Local à vélo
  • Copropriété
  • Construit Après 1990
Transports en commun

nezel aulnay
à 470 m

Équipements
Plaques de cuisson
Four
Hotte Aspirante
Inclus dans les charges
Entretien bâtiment
Eau froide
Relevés techniques

Orientation
Sud

Traversant
Non

Vitrage
Double


DPE : 66
GES : 16

Diagnostic réalisé le: Non renseigné


Production eau chaude
Individuel Gaz

Production chauffage
Individuel Gaz


Les informations sur les risques auxquels ce bien est exposé sont disponibles sur le site Géorisques: www.georisques.gouv.fr

Biens similaires