1 106,16 € cc
17,42 € / m²

Appartement nu à louer

Appartement nu à louer

99 Avenue du Général Leclerc 95390 Saint-Prix
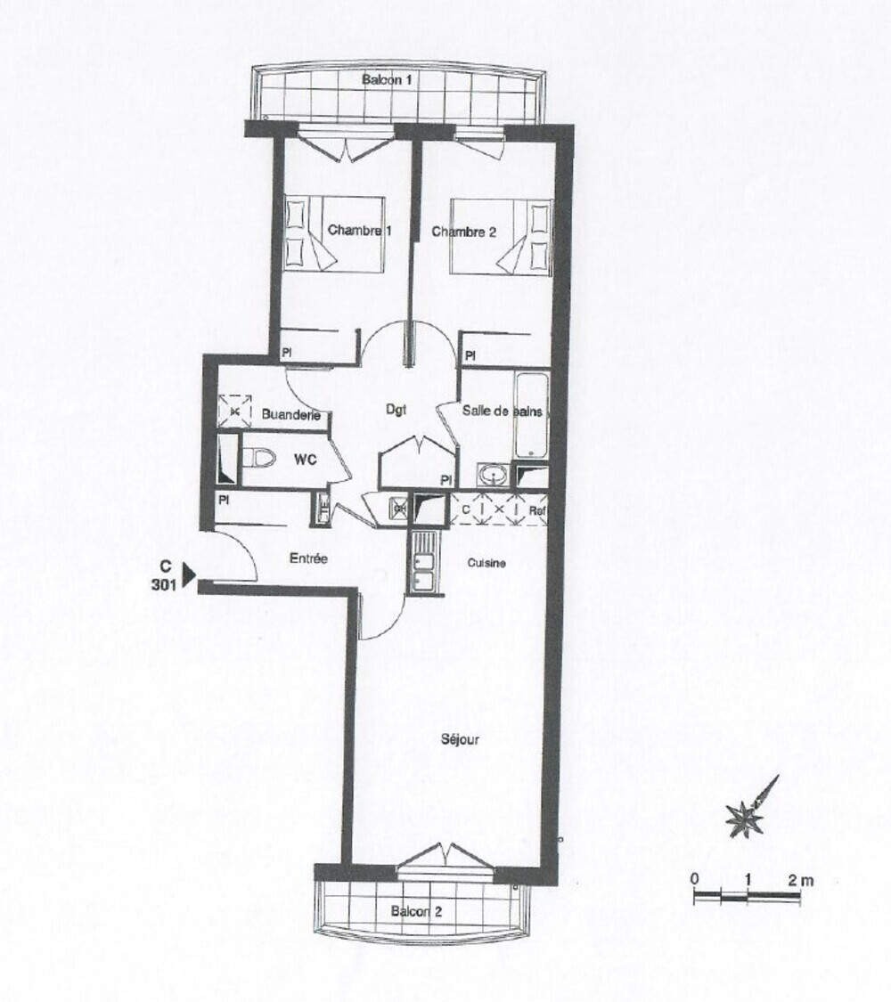
3 pièces 63.5 m2
Référence : 9744
1 106,16 € cc
17,42 € / m²

Conditions de location

1 106,16 € / mois cc

Charges
165,00 €
Dépôt de garantie
941,16 €
Honoraires agence
833,12 € TTC
Disponibilité
Disponible le 26/03
Durée du bail
3 ans
Colocation
Non

Informations

2 chambres
Étage : 3
1 salle d'eau
1 baignoire
1 WC
Bâtiment de : 3 étages
2 parkings
Balcon
Local à vélo
Copropriété
Construit Neuf

Description

Proche du centre ville et de ses nombreux commerces, La résidence Le Bailly prend place dans un environnement pavillonnaire calme et verdoyant. Vous profiterez de la proximité avec la ligne H du transilien qui relie Paris en 24 minutes.
Au 3ème étage sans ascenseur, venez découvrir ce beau 3 pièces (C301) de 63,50m² comprenant une entrée avec placard, un séjour avec une cuisine aménagée et équipée en plaques et hotte, deux chambres avec placards, une buanderie, une salle de bains, un wc séparé, placard dans dégagement.

Deux balcons

2 places de parkings en enfilade.

Cadre loi Pinel
Mis à jour le 13/03/2026

Équipements

Plaques de cuisson
Hotte Aspirante

Relevés techniques

DPE : 6
A
B
C
D
E
F
G
GES : 1
A
B
C
D
E
F
G
Diagnostic réalisé le: Non renseigné

Production eau chaude
Individuel Gaz

Production chauffage
Individuel Gaz


Les informations sur les risques auxquels ce bien est exposé sont disponibles sur le site Géorisques : www.georisques.gouv.fr