T2 REZ-DE-CHAUSSEE 540,00 € cc

Boulevard Deodat de Sévérac 31770 Colomiers

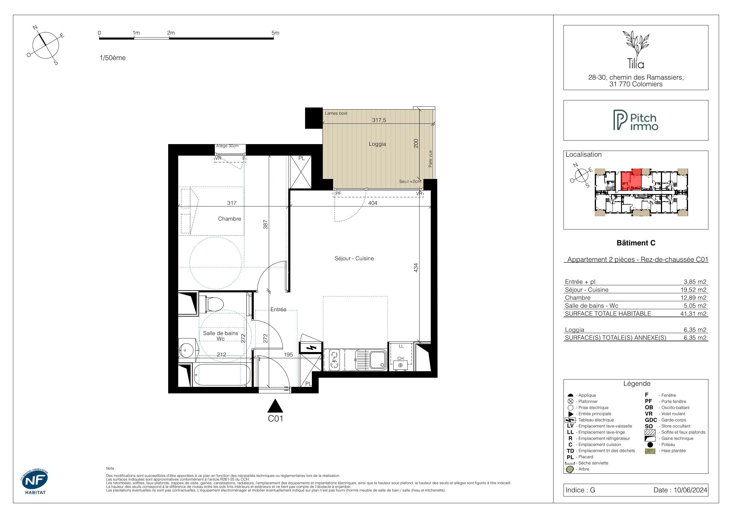
2 pièces 41.31m2

Référence : 39030

Conditions de location
540,00 € / mois cc

Charges
50,00 €

Dépôt de garantie
490,00 €

Honoraires agence
537,01 € TTC *


Disponibilité
Dès maintenant

Durée du bail
3 ans

Colocation
Non


* Dont -0,02 € TTC pour la réalisation de l'état des lieux
Description

Au 9 Boulevard Déodat de Séverac à Colomiers, T2 à louer en rez-de-chaussée.
Il se compose d'une entrée avec placard, d'une pièce de vie avec cuisine ouverte, salle de bains avec baignoire et wc, chambre avec placard, une terrasse.
La place de parking est en extérieur.
Le chauffage et l'eau sont produits par une chaudière au gaz individuel.
Votre dossier complet est à déposer avant toute visite.

Mis à jour le 27/10/2025

Caractéristiques
  • 1 chambre
  • Étage : RDC
  • 1 salle d'eau
  • 1 douche
  • 1 WC
  • Bâtiment de : 1 étage
  • Terrasse
  • 1 parking
  • Local à vélo
  • Copropriété
  • Adapté PMR
  • Construit Neuf
État et prestations

État général
Excellent


Équipements
Plaques de cuisson
Réfrigérateur
Fibre
Hotte Aspirante
Thermostat
Inclus dans les charges
Entretien bâtiment
Eau froide
Taxe ordures ménagères
Relevés techniques

Orientation
Nord-Ouest

Traversant
Non

Vitrage
Double


DPE : 57
GES : 12

Diagnostic réalisé le: 07/04/25


Estimation facture d'énergie
57 à 12 € / an


Production eau chaude
Individuel Gaz

Production chauffage
Individuel Gaz


Les informations sur les risques auxquels ce bien est exposé sont disponibles sur le site Géorisques: www.georisques.gouv.fr

Biens similaires