Appartement nu à louer 748,31 € cc

Appartement Rue de la Chasse 93130 Noisy-le-Sec

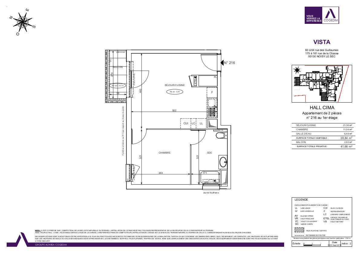
2 pièces 38.84m2

Référence : 3994

Conditions de location
748,31 € / mois cc

Charges
90,00 €

Dépôt de garantie
658,31 €

Honoraires agence
504,92 € TTC


Disponibilité
Disponible le 05/11

Durée du bail
3 ans

Colocation
Non

Description

Dans un quartier familial de Noisy le Sec qui regroupe les établissements scolaires, à 5' à pied du marché de Montreuil, proche des centres commerciaux pour parfaire le quotidien.
Dans un immeuble récent contemporain, un appartement de type 2 PIECES (216) d'une surface de 38,84m2 au 1er étage avec ascenseur comprenant un séjour ouvert sur une cuisine, une chambre et une salle d'eau avec wc.

Un balcon d'une surface de 2,82m2.

Cadre Loi Pinel.

Disponible à partir du 05 novembre 2025.

Mis à jour le 18/10/2025

Caractéristiques
  • 1 chambre
  • Étage : 1
  • 1 salle d'eau
  • 1 WC
  • Ascenseur
  • Balcon
  • Copropriété
  • Construit Après 1990
Inclus dans les charges
Chauffage
Eau froide
Eau chaude
Relevés techniques
DPE : 90
GES : 20

Diagnostic réalisé le: Non renseigné


Production eau chaude
Collectif

Production chauffage
Collectif


Les informations sur les risques auxquels ce bien est exposé sont disponibles sur le site Géorisques: www.georisques.gouv.fr

Biens similaires