Appartement Sceaux T3 - 2 chambres 690 000 €

Sceaux T3 - 2 chambres

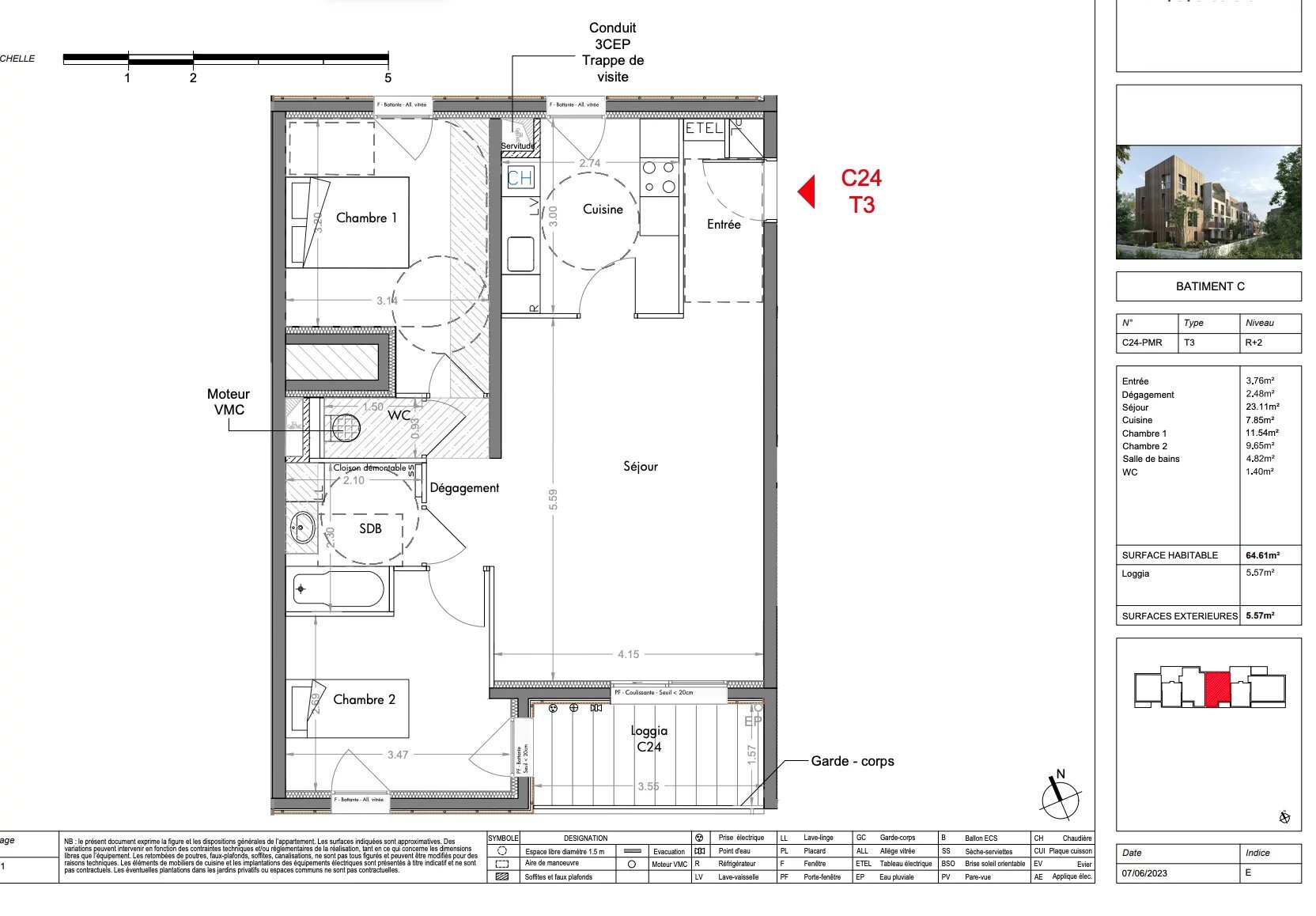
3 pièces 64.61m2

Référence : 41766

Conditions de vente
690 000 € 10 679 € / m²

Charges immeuble
Non renseignée

Taxe foncière
Non renseignée

Description

Appartement Sceaux T3 - 2 chambres Appartement de 64,61m2, composé d'un séjour de 23,11m2 et d'une cuisiné indépendante de 7,54, de 2 chambres et d'une loggia donnant sur une des chambres et le séjour. Cette résidence est à 2 pas du parc de Sceaux et proche de la cité scolaire et des commerces.

Mis à jour le 01/11/2025

Caractéristiques
  • 2 chambres
  • Étage : 2
  • 1 salle d'eau
  • 1 WC
  • Bâtiment de : 23 étages
  • Ascenseur
  • Adapté PMR
  • Construit
  • Vue exceptionelle
Équipements
Fibre
Relevés techniques
Diagnostic de performance énergétique :

Les informations sur les risques auxquels ce bien est exposé sont disponibles sur le site Géorisques: www.georisques.gouv.fr

Candidater / S'inscrire à une visite
Proposé par
Signaler cette annonce



Biens similaires