Appartement nu à louer 780,00 € cc

Rue Barre 77230 Juilly

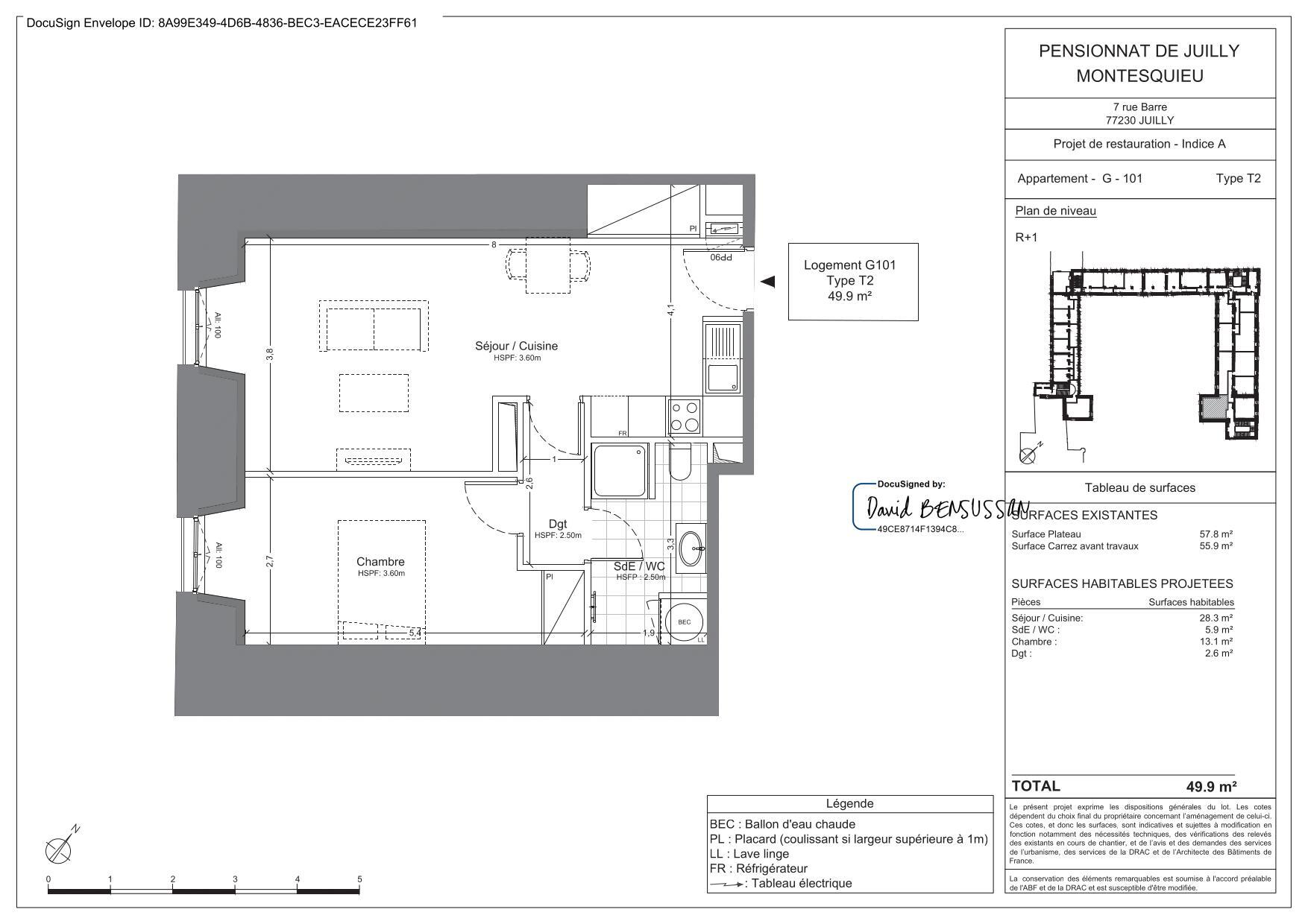
2 pièces 49.9m2

Référence : 51347

Conditions de location
780,00 € / mois cc

Charges
85,00 €

Dépôt de garantie
695,00 €

Honoraires agence
548,90 € TTC


Disponibilité
Dès maintenant

Durée du bail
3 ans

Colocation
Non

Description

Avec son charme pittoresque et son ambiance sereine, Juilly est l'endroit idéal pour échapper à l'agitation urbaine.
Situé dans un cadre exceptionnel, entre richesses architecturales et parcs remarquables, le plus ancien pensionnat de France, fondé en 1638 sur Ordre de Louis XIII, vient tout juste d'être réhabilité en logements d'exceptions.
A seulement 5' en voiture de la Gare "Dammartin-Juilly-St Mard" (ligne K et TER) reliant Paris Gare du Nord en 30 minutes. A proximité des Aéroports Roissy-Charles de Gaulle et du Bourget.
Au 1ER étage, un 2 pièces de 49.9m² comprenant, un séjour avec une cuisine aménagée et équipée, une chambre, une salle d'eau avec wc.
2 emplacements de parking extérieur sécurisé.


Merci de déposer votre dossier complet sur votre profil FLATBAY afin qu'il soit au préalable étudié. Si ce dernier répond aux critères : Revenus : 3 x le montant du loyer CC) vous recevrez une invitation de visite. Tout dossier incomplet sera refusé.
Les dossiers garants sont acceptés uniquement pour les statuts étudiants.

Mis à jour le 26/10/2025

Caractéristiques
  • 1 chambre
  • Étage : 1
  • 1 salle d'eau
  • 1 douche
  • 1 WC
  • 2 parkings
  • Copropriété
  • Construit Avant 1946
Inclus dans les charges
Entretien bâtiment
Relevés techniques
Diagnostic de performance énergétique : Vierge

Production eau chaude
Individuel Électrique

Production chauffage
Individuel Électrique


Les informations sur les risques auxquels ce bien est exposé sont disponibles sur le site Géorisques: www.georisques.gouv.fr

Biens similaires