483 000 €
6 053 € / m²

Vanves : 3P 79m² avec balcon + cave

Vanves : 3P 79m² avec balcon + cave

22 rue auguste conte 92170 Vanves
3 pièces 79.79 m2 Exclusivité
Référence : 70922
483 000 €
6 053 € / m²

Conditions de vente

483 000 €

Charges immeuble
2 160 € / an
Taxe foncière
Non renseignée
Honoraires TTC
15 022 € *

* Soit 467 978,00 € + honoraires de 3,21% TTC À la charge de l'acquéreur

Informations

2 chambres
Étage : 4
1 salle d'eau
1 WC
Gardien
1 cave
Ascenseur
Balcon
Copropriété
Adapté PMR
Construit

Description

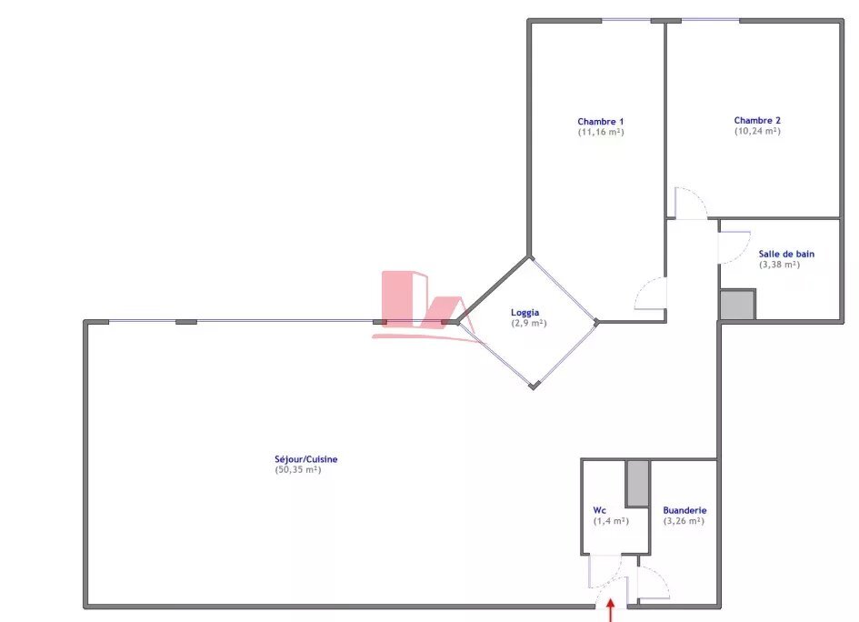
Vanves : 3P 79m² avec balcon + cave Quartier Plateau de Vanves L'immobilière Parent est heureuse de vous présenter cet appartement de 3pièces de 79m2 à proximité immédiate de la ligne 13 du métro MALAKOFF - PLATEAU DE VANVES, Lignes de bus 58, 89, des commerces. Ce bien est composé d'une entrée, séjour avec cuisine ouverte donnant sur balcon. Deux chambres s'ajoutent à ce bien, salle de bains, WC séparé, un grand placard et buanderie. Une des chambres donne également sur le balcon. Une cave complètent l'ensemble et possibilité d'acheter un place de parking en supplément. Sectorisation Lycée Michelet en prime! Appartement refait il y a peu avec beaucoup de gout et sans perte de place. VENEZ VITE VISITER!!
Mis à jour le 07/01/2026

Équipements

Fibre

Relevés techniques

Orientation
Sud

Diagnostic de performance énergétique :

Production eau chaude

Production chauffage


Les informations sur les risques auxquels ce bien est exposé sont disponibles sur le site Géorisques : www.georisques.gouv.fr