1 049 000 €

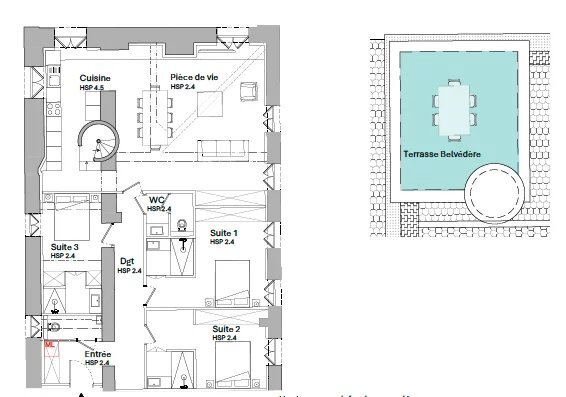
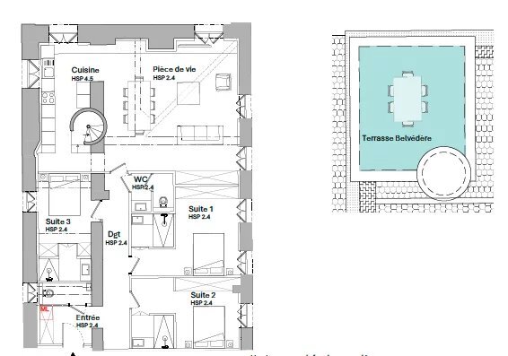
T4 de 109,8m2 avec terrasse belvédère

T4 de 109,8m2 avec terrasse belvédère

17000 La Rochelle
4 pièces 109.8 m2 Exclusivité
Référence : 71616
1 049 000 €
9 554 € m²

Conditions de vente

1 049 000 €

Charges immeuble
Non renseignée
Taxe foncière
Non renseignée

Informations

3 chambres
Étage : 4
1 WC
Bâtiment de : 4 étages
Terrasse
Ascenseur
Vue exceptionelle

Description

T4 de 109,8m2 avec terrasse belvédère Cet appartement - au 4ème et dernier étage avec terrasse belvédère de 15,8m2 et triple exposition (Nord - Est - Ouest) Les chambres ont toutes une salle de douche privatives. Ce programme de rénovation bénéficie du dispositif Malraux, vous permettant de bénéficier d'une réduction d'impôt de 30% sur le montant des travaux. Cet appartement dispose d'une place de parking en plus.
Mis à jour le 20/11/2025

Relevés techniques

Orientation
Nord

Diagnostic de performance énergétique :

Production eau chaude

Production chauffage


Les informations sur les risques auxquels ce bien est exposé sont disponibles sur le site Géorisques : www.georisques.gouv.fr