FAC DE LETTRES - F2 loué à vendre 99 000 €

Appartement Rue de Metz 54000 Nancy

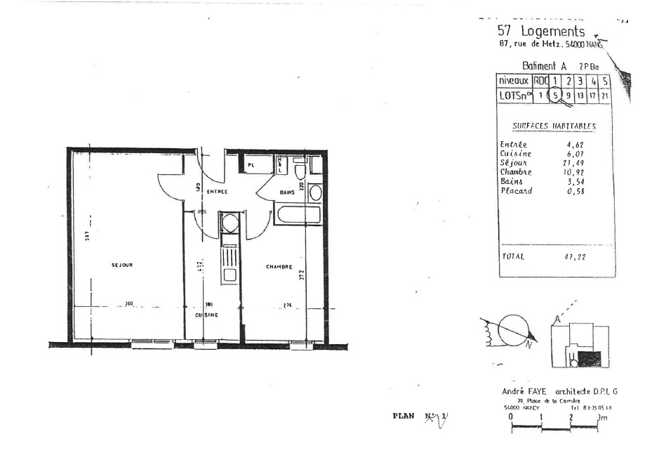
2 pièces 47.22m2

Référence : #1183

Conditions de vente
99 000 € 2 097 € / m²

Charges immeuble
1 260 € / an

Taxe foncière
Non renseignée


Honoraires à la charge du vendeur

Description

Venez découvrir cet appartement de 2 pièces loué de 47.22 m2 situé au 3ème étage avec ascenseur d’une résidence bien entretenue, idéalement placée à proximité du centre ville de Nancy, de la gare SNCF, des lignes de bus et de toutes les commodités.
Ce logement se compose d’un agréable séjour, une cuisine, d’une chambre à coucher, d’une entrée avec placard, d’une salle de bains avec baignoire et WC.
Vendu avec une place de parking sous-sol et une cave.
Actuellement loué 523 EUR HC par mois depuis le 01/01/2016.
Ne laissez pas passer cette opportunité ! Contactez-nous dès maintenant afin de planifier une visite à votre convenance.

Mis à jour le 06/10/2025

Caractéristiques
  • 1 chambre
  • Étage : 3
  • 1 salle d'eau
  • 1 baignoire
  • 1 WC
  • Bâtiment de : 5 étages
  • 1 parking
  • 1 cave
  • Ascenseur
  • Copropriété
  • Adapté PMR
  • Construit 1989

Etat général
Travaux à prévoir

Relevés techniques

Traversant
Non

Vitrage
Double


DPE : 190
GES : 5

Diagnostic réalisé le: 13/12/24


Estimation facture d'énergie
790 à 1120 € / an


Production eau chaude
Individuel Électrique

Production chauffage
Individuel Électrique


Les informations sur les risques auxquels ce bien est exposé sont disponibles sur le site Géorisques: www.georisques.gouv.fr

Biens similaires