1 250 000 €

Appartement T5 idéalement placé dans le 13ème

Appartement T5 idéalement placé dans le 13ème

Maison-Blanche 75013 Paris 13ème
5 pièces 108.05 m2
Référence : 76442
1 250 000 €
11 569 € m²

Conditions de vente

1 250 000 €

Charges immeuble
Non renseignée
Taxe foncière
Non renseignée

Informations

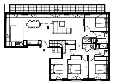
4 chambres
Étage : 6
1 salle d'eau
1 douche
2 WCs
Bâtiment de : 5 étages
Terrasse
Ascenseur
Vue exceptionelle

Description

Appartement T5 idéalement placé dans le 13ème En plein coeur du 13ème, ce quartier cosmopolite mêle art de vivre, dynamisme et modernité. Cet immeuble est situé à 300m des lignes 7 et 14 et à 500m des tramway ligne 3 et 9. Idéalement placé à proximité des écoles et commerces. Ce bien est composé : - d'un grand espace de vie : séjour et cuisine de plus de 53m2 - d'une belle terrasse de plus 16m2 - de 4 belles chambres, - et d'une salle de bains et d'une salle de douche - d'un Rooftop de plus de 25m2 Pour plus d'information, merci de nous contacter directement.
Mis à jour le 20/11/2025

Relevés techniques

Diagnostic de performance énergétique :

Production eau chaude

Production chauffage


Les informations sur les risques auxquels ce bien est exposé sont disponibles sur le site Géorisques : www.georisques.gouv.fr