220 000 €

Spécial investisseur - Appartement T1 à Clichy

Spécial investisseur - Appartement T1 à Clichy

92110 Clichy
1 pièce 34.59 m2
Référence : 80540
220 000 €
6 360 € m²

Conditions de vente

220 000 €

Charges immeuble
Non renseignée
Taxe foncière
Non renseignée

Informations

Étage : 1
1 salle d'eau
Bâtiment de : 7 étages
Ascenseur
Vue exceptionelle

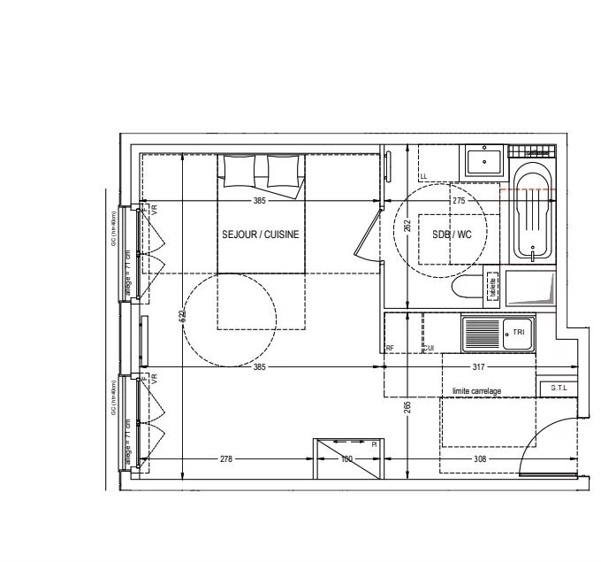
Description

Spécial investisseur - Appartement T1 à Clichy Bien idéalement placé au coeur de Clichy, à proximité des transports et commerces. A seulement 200 mètres de Paris 17ème. Ce bien en nue propriété se compose : - d'un séjour/cuisine de 28m2, - d'une salle de bains Pour plus d'information, merci de nous contacter directement.
Mis à jour le 20/11/2025

Relevés techniques

Diagnostic de performance énergétique :

Production eau chaude

Production chauffage


Les informations sur les risques auxquels ce bien est exposé sont disponibles sur le site Géorisques : www.georisques.gouv.fr