340 029 €
12 783 € / m²

SPÉCIAL INVESTISSEUR - Appartement T1 Bis Paris 17ème

SPÉCIAL INVESTISSEUR - Appartement T1 Bis Paris 17ème

75017 Paris 17ème
1 pièce 26.6 m2
Référence : 75PARIPIRPA101
340 029 €
12 783 € / m²

Conditions de vente

340 029 €

Taxe foncière
Non renseignée

Informations

Étage : 1
1 salle d'eau
1 WC
Bâtiment de : 5 étages
Ascenseur
Mono-propriété

Description

Idéalement placé à 2 pas de métro ligne 13 des commerces et des écoles.

Ce bâtiment en réhabilitation est un projet idéal pour les investisseurs.

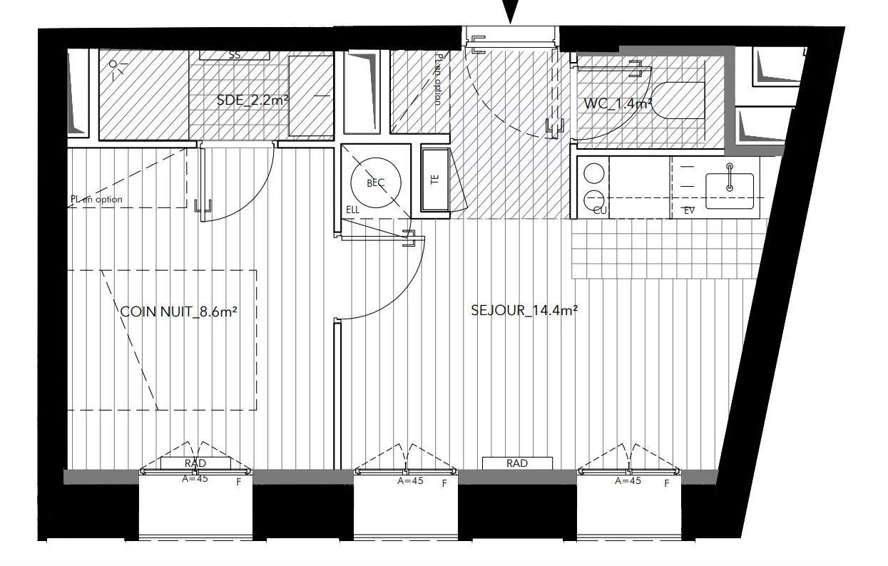
Ce bien se compose :

- d'un séjour de plus de 14m2,
- d'une salle d'eau et de toilettes séparées,
- d'un coin nuit de plus de 8m2.

Pour plus d'information, merci de nous contacter directement.
Mis à jour le 23/04/2026

Relevés techniques

Traversant
Non
Vitrage
Double

DPE : 107
A
B
C
D
E
F
G
GES : 7
A
B
C
D
E
F
G
Diagnostic réalisé le: 05/03/2026

Production eau chaude
Individuel Gaz

Production chauffage
Individuel Gaz


Les informations sur les risques auxquels ce bien est exposé sont disponibles sur le site Géorisques : www.georisques.gouv.fr

État et prestations

État général
Excellent

Cuisine
Prestations
État
Salles de bain
Prestations
État
Sol(s)
Prestations
État
Fenêtres
Prestations
État

Détails des surfaces

Espace
Carrez
Au sol
Séjour
14.4 m²
0 m²

Salle de douche
2.2 m²
0 m²

Chambre 1
8.6 m²
0 m²

Total
25.20 m²
0.00 m²