Grand 4 pièces avec balcon et parking – Calme 390 000 €

93300 Aubervilliers

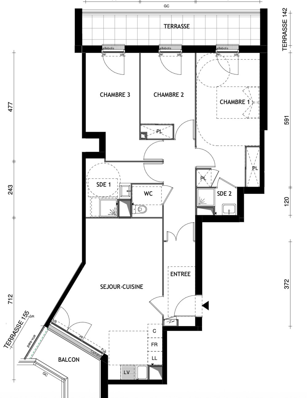
4 pièces 82m2

Référence : 54257

Conditions de vente
390 000 € 4 756 € / m²

Charges immeuble
3 128 € / an

Taxe foncière
Non renseignée


Honoraires à la charge du vendeur

Description

À 5 min à pied du métro « Mairie d’Aubervilliers » (ligne 12), dans une petite rue calme. Au 1er étage d’un immeuble de 2022, très bel appartement 4 pièces. Il se compose d’un grand séjour-salle à manger lumineux avec cuisine ouverte, donnant accès à un balcon côté jardin. 3 chambres dont une avec salle d’eau privative. Une salle d’eau indépendante et des WC séparés. Une place de parking complète le bien.

L’appartement est idéal pour une famille :
👉 Un séjour lumineux exposé ouest, avec un balcon pour profiter du soleil
👉 Une cuisine ouverte et toute équipée qui donne sur le salon
👉 3 chambres, toutes avec accès à une terrasse commune, dont une avec salle d’eau privative
👉 Une grande salle d’eau, des WC séparés aux normes PMR

📍 Rue Villebois Mareuil – 93300 Aubervilliers

Les + :
• Résidence récente, bien entretenue, avec ascenseur
• Chauffage collectif (confort et économies)
• Place de parking privée incluse + stationnement gratuit dans la rue
• DPE : C

Côté pratique :
• Métro à 5 min à pied 🚇
• Marché à 2 min 🥕
• Écoles à proximité immédiate 👶
• Quartier calme et résidentiel 🌳

Mis à jour le 29/09/2025

Caractéristiques
  • 3 chambres
  • Étage : 1
  • 2 salles d'eau
  • 1 WC
  • Bâtiment de : 4 étages
  • 1 parking
  • Ascenseur
  • Balcon
  • Copropriété
  • Adapté PMR
  • Construit 2023
Équipements
Plaques de cuisson
Four
Micro-ondes
Réfrigérateur
Lave-linge
Lave-vaisselle
Fibre
Hotte Aspirante
Relevés techniques

Orientation
Ouest

Traversant
Oui


DPE : 83
GES : 17

Diagnostic réalisé le: 09/10/23


Production eau chaude
Collectif

Production chauffage
Collectif


Les informations sur les risques auxquels ce bien est exposé sont disponibles sur le site Géorisques: www.georisques.gouv.fr

Biens similaires