Appartement nu à louer 1 181,95 € cc

Avenue du Maréchal de Lattre de Tassigny 93140 Bondy

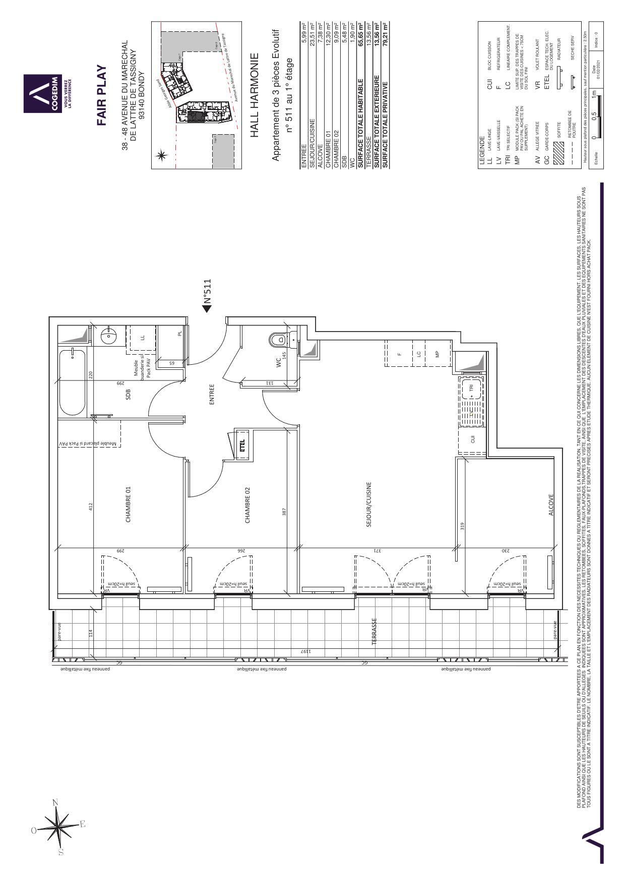
3 pièces 65.65m2

Référence : 74199

Conditions de location
1 181,95 € / mois cc

Charges
196,95 €

Dépôt de garantie
985,00 €

Honoraires agence
853,45 € TTC


Disponibilité
Dès maintenant

Durée du bail
3 ans

Colocation
Non

Description

Av, du Maréchal Lattre de Tassigny, dans une résidence neuve, à proximités de toutes commodités.
Un appartement de type T3 (511) d'une surface de 65,65m2 au 1er étage avec ascenseur.
Il est composé: d'une entrée, d'un séjour ouvert sur une cuisine aménagée et équipée (plaques de cuisson et hotte), de deux chambres, d'une salle de bains et d'un WC.

Une terrasse d'une surface de 13,56m2.

Un emplacement parking.

Appartement neuf.

Disponible à partir du 06 octobre 2025.

Cadre Loi Pinel.

Mis à jour le 06/10/2025

Caractéristiques
  • 2 chambres
  • Étage : 1
  • 1 salle d'eau
  • 1 WC
  • 1 parking
  • Ascenseur
  • Local à vélo
  • Copropriété
  • Construit Neuf
Équipements
Plaques de cuisson
Hotte Aspirante
Inclus dans les charges
Chauffage
Eau froide
Eau chaude
Relevés techniques

Traversant
Non

Vitrage
Double


Diagnostic de performance énergétique : En cours

Production eau chaude
Collectif

Production chauffage
Collectif


Les informations sur les risques auxquels ce bien est exposé sont disponibles sur le site Géorisques: www.georisques.gouv.fr

Biens similaires