220 350 €
6 370 € / m²

Spécial investisseur - Appartement T1 à Clichy

Spécial investisseur - Appartement T1 à Clichy

92110 Clichy
1 pièce 34.59 m2
Référence : 92CLICCARRD13
220 350 €
6 370 € / m²

Conditions de vente

220 350 €

Taxe foncière
Non renseignée

Informations

Étage : 1
1 salle d'eau
Bâtiment de : 7 étages
Ascenseur
Mono-propriété

Description

Bien idéalement placé au coeur de Clichy, à proximité des transports et commerces. A seulement 200 mètres de Paris 17ème.

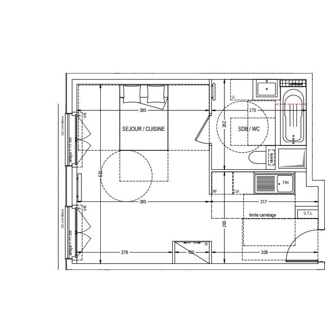
Ce bien en nue propriété se compose :

- d'un séjour/cuisine de 28m2,
- d'une salle de bains

Pour plus d'information, merci de nous contacter directement.
Mis à jour le 24/03/2026

Relevés techniques

DPE : 107
A
B
C
D
E
F
G
GES : 7
A
B
C
D
E
F
G
Diagnostic réalisé le: 03/11/2025

Production eau chaude
Chaudière

Production chauffage
Individuel Électrique


Les informations sur les risques auxquels ce bien est exposé sont disponibles sur le site Géorisques : www.georisques.gouv.fr

État et prestations

État général
Excellent

Détails des surfaces

Espace
Carrez
Au sol
Séjour / cuisine
28.01 m²
0 m²

Salle de bain
6.58 m²
0 m²

Total
34.59 m²
0.00 m²